

























































Images coming soon
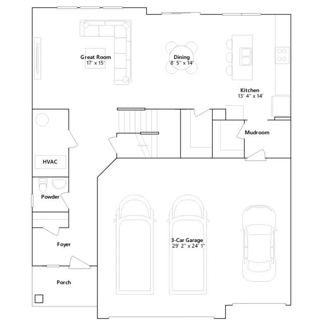
This new two-story home is designed to deliver ease of living. On the first floor is a cohesive open layout shared between the spacious Great Room, dining room and a fully equipped kitchen. Upstairs is a loft for additional living space, surrounded by three secondary bedroom and a tranquil owners suite with a full-sized bathroom. Completing the home is a desirable three-car garage.
Stay informed with Livabl updates on new community details and available inventory.