





















































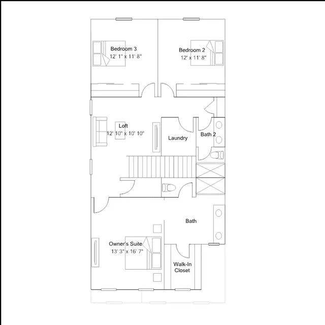
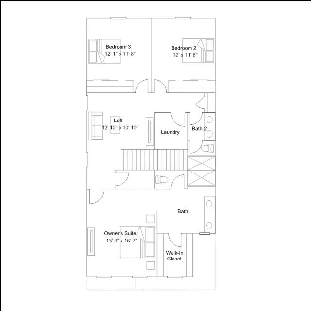
This two-story home boasts a great layout with a long entryway that feeds into the main living area. Boasting an open layout between the Great Room, dining and kitchen with island and walk-in pantry, each area flows effortlessly into one another on the first level. A powder bathroom provides convenience. Upstairs is a central loft surrounded by three bedrooms, including the owners suite with a spa-like bathroom and spacious walk-in closet.