






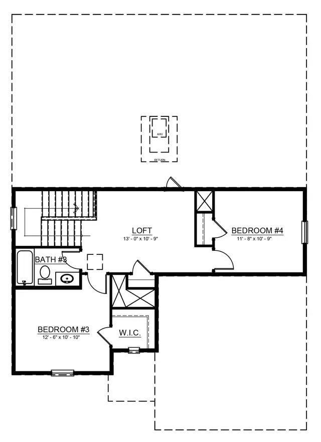
The Madison floorplan is a stunning two-story home offering 2,274 square feet of living space with a unique loft-style design. Featuring four bedrooms, three bathrooms, and a two-car garage, this home provides plenty of room for families of all sizes. The open-concept main floor is perfect for entertaining, while the loft adds extra space for relaxation or work. With its modern design and ample living areas, the Madison is a standout choice.
Stay informed with Livabl updates on new community details and available inventory.