

















































Get additional information including price lists and floor plans.
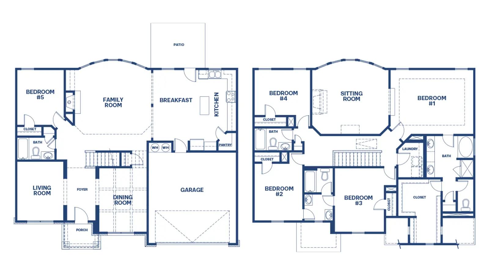
The Savannah floorplan at Heritage Pointe is a 5 bedroom, 4 bathroom two-story home covering 3,034 square feet. The 2-car garage ensures plenty of room for vehicles and storage. Classic and timeless, this incredible design offers a formal dining room and formal living space upon entry. Create a separate living area or a dedicated home office depending on your lifestyle. Beyond the foyer youre greeted by a spacious family room with a dramatic wall of bowed windows. The family room flows effortlessly into a casual breakfast area and a well-appointed kitchen featuring an island with bar stool seating, contemporary cabinetry, stainless steel appliances and beautiful quartz countertops. A guest bedroom and full bath complete the main level. Upstairs offers a private bedroom suite that is truly like no other. From the spacious sleeping quarters to the separate sitti...
Stay informed with Livabl updates on new community details and available inventory.