


Get additional information including price lists and floor plans.



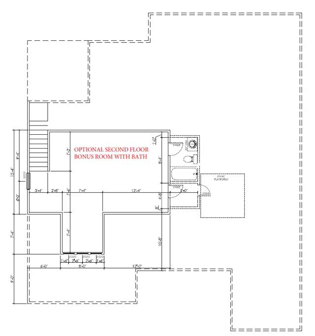
The Oakland B is one of our thoughtfully designed 1.5-story floorplans featured at Shadowood in Seneca, South Carolina. Featuring 2,257 square feet of stylish and functional living space, this home includes three bedrooms, two bathrooms, and a two-car garage, with the option to add a bonus room with a full bath for additional flexibility. Perfect for those who love to entertain, the Oakland B blends open living areas with comfortable private spaces. As you enter through the covered porch, a welcoming foyer leads you into the open-concept living room, dining area, and kitchen. The kitchen features stainless steel appliances, a center island, and ample cabinetry, making it both beautiful and practical for everyday living. The spacious living room includes soaring cathedral ceilings and opens to a covered deck, ideal for outdoor relaxation and entertaining. The p...
Stay informed with Livabl updates on new community details and available inventory.