






Get additional information including price lists and floor plans.
Images coming soon
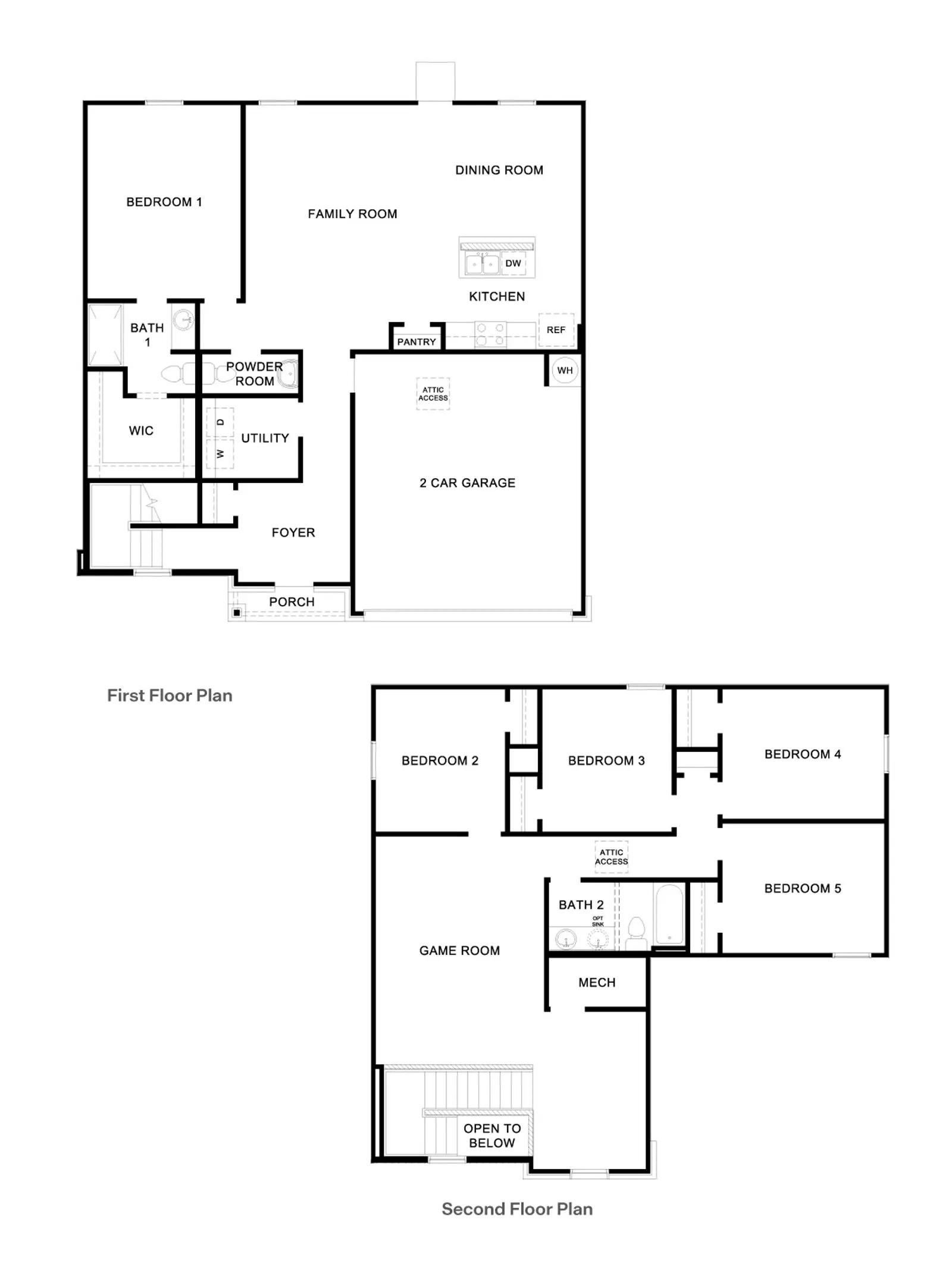
The Callahan is the largest floorplan available at Swenson Heights in Seguin, Texas. This beautiful two-story home has 5 bedrooms, 2.5 bathrooms, a gameroom and a 2-car garage within 2,236 square feet of comfortable living space. Our homes in Swenson Heights feature our farmhouse exteriors and the Callahan is available in 2 exterior options. As you step inside the home from the covered front porch, youll enter foyer and then the family room, dining room and kitchen. This large, open concept living space will become the central hub of your home life. Enjoy entertaining in this bright and welcoming downstairs space. The kitchen features an island with a stainless-steel sink, quartz countertops, 42 upper picture frame cabinets, a pantry closet and stainless-steel appliances. The Callahan features the primary ensuite downstairs. Jump start your morning routine in ...
Stay informed with Livabl updates on new community details and available inventory.