
























Get additional information including price lists and floor plans.
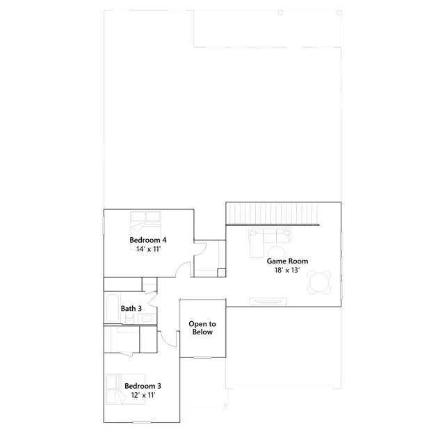
This new two-story home features a secluded first-floor owners suite, a private retreat with a spa-inspired bathroom and walk-in closet. An open plan blends a modern kitchen with the living and dining areas, adjacent to a spacious covered patio for year-round outdoor enjoyment. Upon entry is a secondary bedroom with an en-suite bathroom, and two additional bedrooms are located on the second floor. This home provides desirable features such as a first-floor study and a flexible game room on the upper level.
Stay informed with Livabl updates on new community details and available inventory.