hero-image-0
hero-image-1
hero-image-2

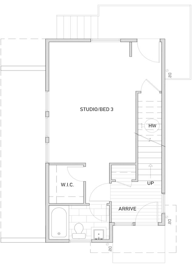
240D

By

Isola Homes

   |   

Infinity 8

Infinity 8
Sold
Sold
3
2
1
1,749
240D details
unit-banner-image
unit-banner-image
unit-banner-image
240D is now sold.
Check out available communities below.