hero-image-0

7124D Beacon Avenue S

By

Century Communities

   |   

Helio

Helio
Sold
Sold
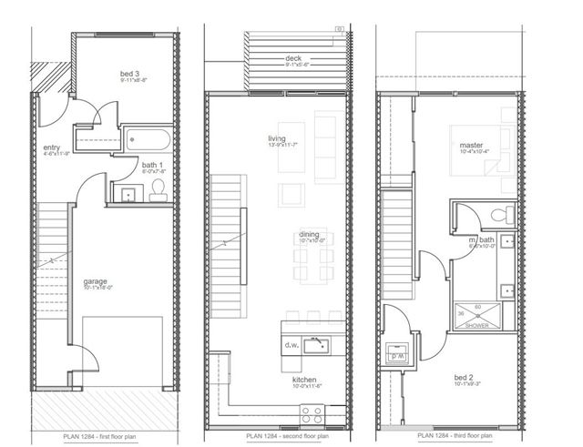
3
2
1,284
7124D Beacon Avenue S details
unit-banner-image
unit-banner-image
unit-banner-image
7124D Beacon Avenue S is now sold.
Check out available nearby homes below.