hero-image-0
hero-image-1

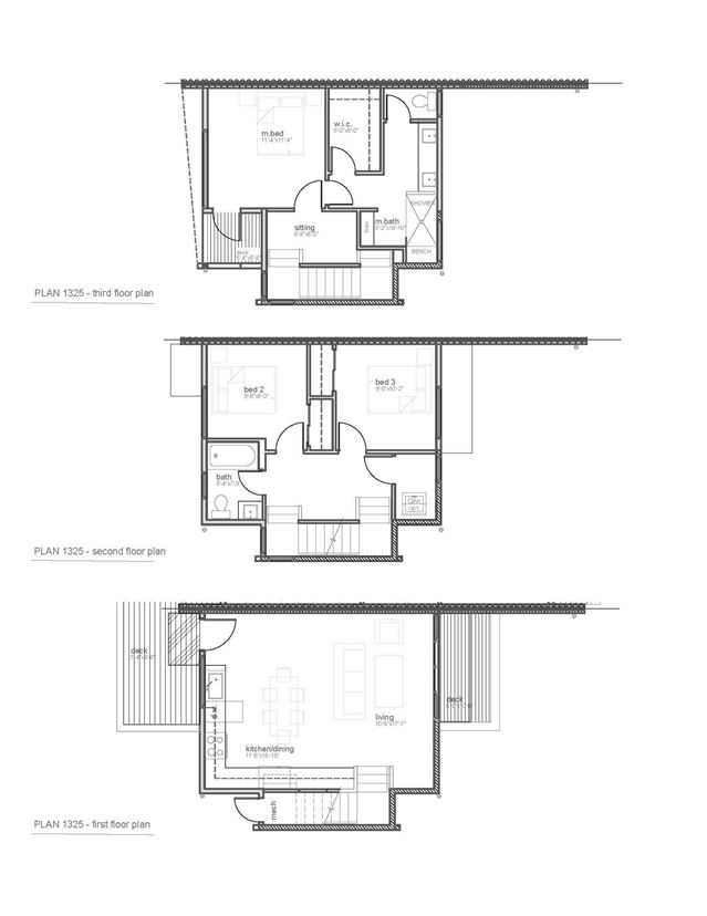
1325 Plan

By

Century Communities

   |   

Helio

Helio
Sold
Sold
3
2
From 1,325
unit-banner-imageunit-banner-imageunit-banner-image
1325 Plan details
1325 Plan is now sold.
Check out available communities below.