hero-image-0

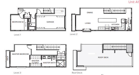
A1

By

Shelter Homes

   |   

Element 2

Element 2
Sold
Sold
2
2
1
1,540
A1 details
unit-banner-image
unit-banner-image
unit-banner-image
A1 is now sold.
Check out available nearby townhomes below.