New Homes for Sale
Articles
Professionals
Log in
Sign up
Photos 7
Videos 0
Map
Interactive floor plan 0
Virtual 0
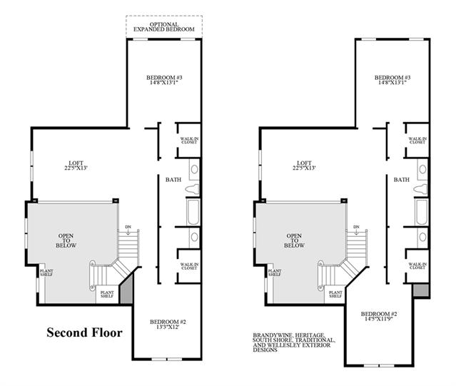
Bucknell Wellesley Plan
By
Toll Brothers
   |  Â
Enclave at Shackamaxon
Community
Available homes
Get updates
Save
Request info
Request info
Community
Available homes
Request info
Get updates
Save
Request info
Enclave at Shackamaxon
Get updates
Request info
Sold
Sold
3
3
1
From 3,780
Bucknell Wellesley Plan details
Address:
Â
Scotch Plains, NJ 07076
Plan type:
Â
Two+ Story
Beds:
Â
3
Full baths:
Â
3
Half baths:
Â
1
SqFt:
Â
From 3,780
Ownership:
Â
Fee simple
Interior size:
Â
From 3,780 SqFt
Lot pricing included:
Â
Yes
Bucknell Wellesley Plan is now sold.