hero-image-0

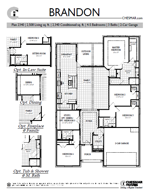
Brandon Plan

By

Chesmar Homes

   |   

Homestead

Homestead
Sold
Sold
4
3
From 2,340
Brandon Plan details
Brandon Plan is now sold.
Check out available nearby plans below.