New Homes for Sale
Articles
Professionals
Log in
Sign up
Photos 2
Videos 0
Map
Interactive floor plan 0
Virtual 0
113 Arusha Ave
By
D.R. Horton
|
Coffee Pointe
Community
Get updates
Save
Request info
Request info
Community
Request info
Get updates
Save
Request info
Coffee Pointe
Get updates
Request info
Sold
Sold
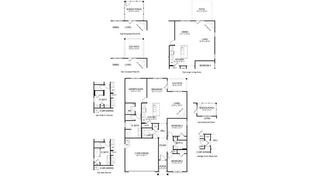
3
2
1,618
113 Arusha Ave details
Address:
Savannah, GA 31419
Plan type:
Detached Single Story
Beds:
3
Full baths:
2
SqFt:
1,618
Ownership:
Fee simple
Interior size:
1,618 SqFt
Lot pricing included:
Yes
113 Arusha Ave is now sold.