hero-image-0

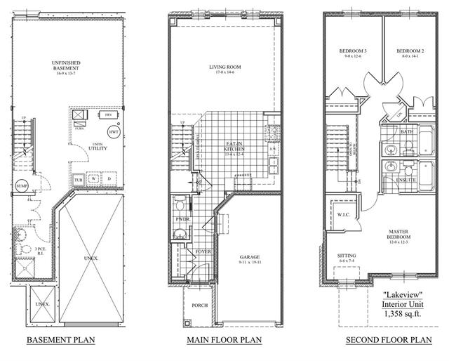
Lakeview (Interior) | Unit 67 | The Winds

Summerside Port Elgin
Sold
Sold
3
2
1
1,358
Lakeview (Interior) | Unit 67 | The Winds details
unit-banner-image
unit-banner-image
unit-banner-image
Lakeview (Interior) | Unit 67 | The Winds is now sold.
Check out available communities below.