hero-image-0
hero-image-1
hero-image-2
hero-image-3

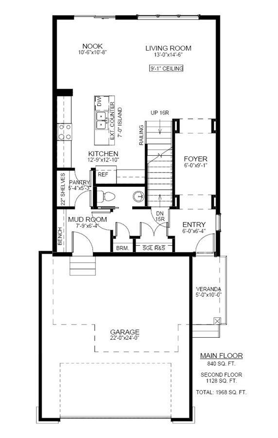
Heatley Plan

Rosewood
For sale
Virtual Tours
For sale
Pricing coming soon
2
3 - 4
2 - 3
1
From 1,968
Heatley Plan details

Contact sales center

Get additional information including price lists and floor plans.

Interested? Receive updates

Stay informed with Livabl updates on new community details and available inventory.