hero-image-0

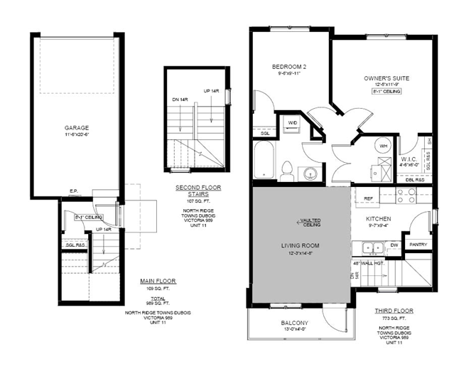
23-651 Dubois Crescent

North Ridge Towns Dubois
Sold
Sold
2
1
989
23-651 Dubois Crescent details
23-651 Dubois Crescent is now sold.
Check out available communities below.