



































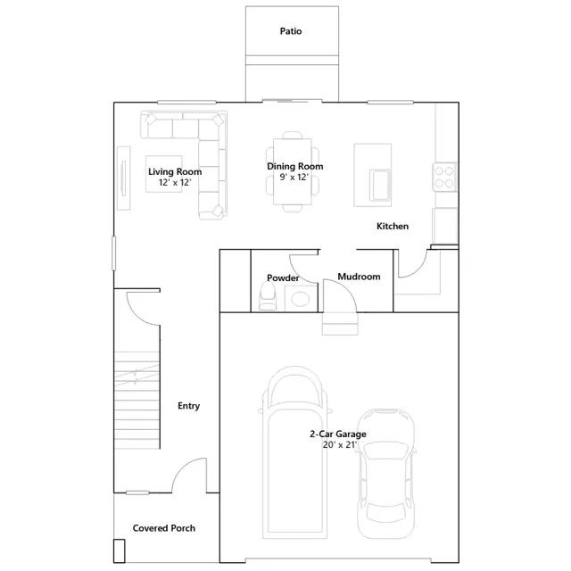
A spacious open floorplan shared between the living room, dining room and kitchen occupies the first level of this two-story home, with sliding glass doors that lead to the patio for indoor-outdoor living and entertaining. All four bedrooms are situated on the second floor, including the luxe owners suite which is comprised of a restful bedroom, spa-inspired en-suite bathroom and walk-in closet.
Stay informed with Livabl updates on new community details and available inventory.