



















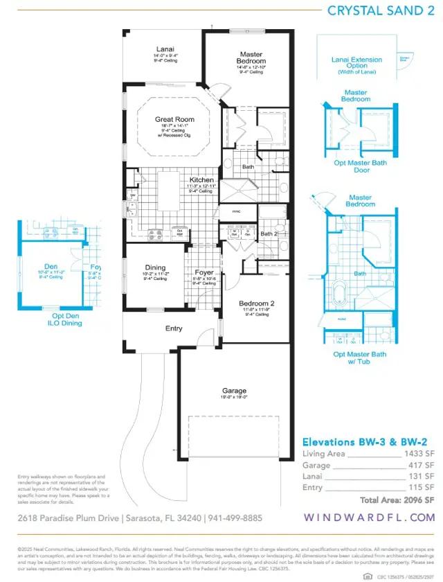
*Base price does not include the homesite premium or design options.* Airy and open, the Crystal Sand 2 paired villa home is comfortable and elegant. An open great room and kitchen area lead to a covered lanai, accessed through sliding glass doors or an optional pocket slider. A formal dining room can be a den with French doors if you prefer. The master suite with window or door to the lanai in the bedroom includes two closets, one a walk-in. The master bath features a walk-in shower, two sink vanities and a private water closet. The home makes a perfect retreat for a small family or as a second home.
Stay informed with Livabl updates on new community details and available inventory.