

























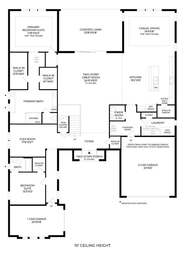
Contemporary deluxe living. The Dexter's inviting expanded covered entry and impressive two-story foyer open onto the expansive great room, with views to the desirable covered lanai beyond. The well-equipped gourmet kitchen overlooks a bright casual dining area, and is enhanced by a large center island with breakfast bar, plenty of counter and cabinet space, and huge walk-in pantry. The marvelous primary bedroom suite is highlighted by dual walk-in closets and deluxe primary bath with dual-sink vanity, large soaking tub, luxe shower, and private water closet. The sizable secondary bedroom features a walk-in closet and private bath. Additional highlights include a secluded office, convenient powder room and everyday entry, centrally located laundry, and additional storage.
Stay informed with Livabl updates on new community details and available inventory.