
























































Get additional information including price lists and floor plans.
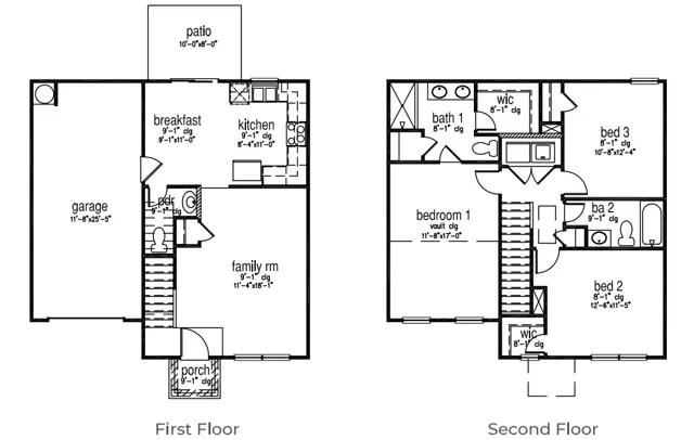
Welcome to the Rachel! This home offers everything you're looking for in a functional two-story floorplan perfect for today's living. As you enter, you can't help but notice the contemporary design and open layout as it seamlessly integrates the living, dining and kitchen areas creating a spacious and inviting atmosphere. On the first floor, you'll find the beautiful kitchen with granite countertops, stunning white cabinetry and a suite of modern stainless-steel appliances as well as a spacious eating area. The first floor also boasts an elegant living area and a half bath, perfect for entertaining! Upstairs the primary suite has a walk-in closet and private bathroom complete with a cultured marble double-sink vanity and walk-in shower. The second floor also has two spacious bedrooms and a second full bath along with a dedicated laundry area. R...
Stay informed with Livabl updates on new community details and available inventory.