















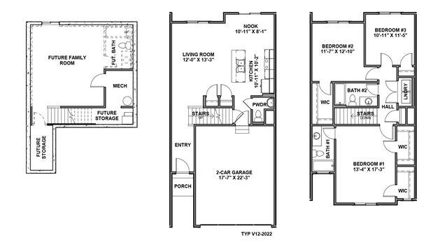
Discover the Millbrook, the spacious two-story townhome floorplan in our Summit Ridge Towns community nestled in Magna, Utah. Choose from five attractive exterior designs for this 3 bedroom, 2.5 bath home with 2-car garage. Smart home technology is also included in every residence to enhance your connectivity. Inside the Millbrook, youll find an open-concept floor plan that seamlessly blends the kitchen, living, and dining room areas, setting the stage for special moments in everyday living and entertaining. The wide kitchen island provides an ideal setup for meal prep, serving, and cleanup, complete with a built-in sink and dishwasher. Upstairs, the three bedrooms provide ample space for family. Convenience is key, with an upstairs laundry room to make wash day a breeze. The primary bedroom offers an en-suite bathroom with a tub and shower combo. The primar...