hero-image-0
hero-image-1
hero-image-2
hero-image-3

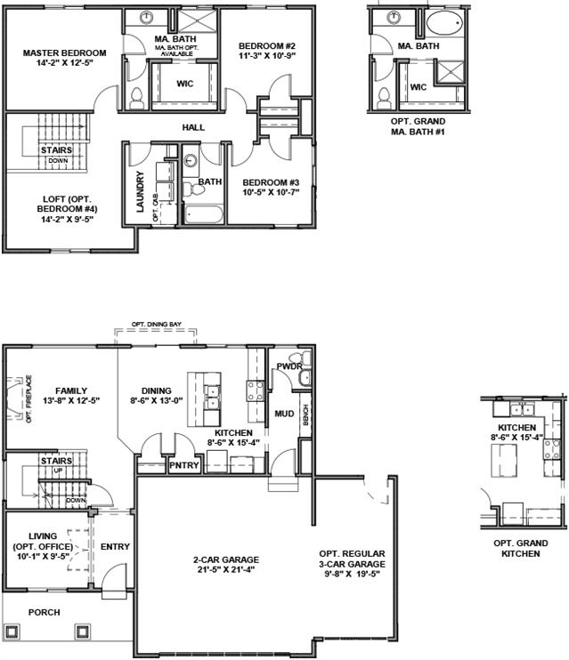
Jefferson Plan

By

D.R. Horton

   |   

Stone Hollow

Stone Hollow
Sold
Sold
3
2
1
From 2,782
unit-banner-imageunit-banner-imageunit-banner-image
Jefferson Plan details
Jefferson Plan is now sold.
Check out available nearby plans below.