






















































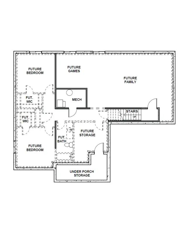
Welcome to the beautiful Durham, a beautiful single-story home located in our Foothill Village community in Santaquin, Utah. This home features 3 beds and 2 baths with a spacious unfinished basement ready for your personalization. Here are the basics: A stylish open concept living space with cathedral ceilings, recessed lighting, and premium laminate flooring create a warm, inviting space to gather. A bright, airy kitchen with tons of quartz countertop space, a breakfast bar, stainless steel appliances, Shaker cabinetry, and a large pantry make cooking a statement in both form and function. A large bedroom with luxe en-suite bathroom and walk-in closet make up the primary bedroom, while two secondary bedrooms, a laundry room, and full shared bathroom round out the main floor. The expansive unfinished basement offers potential living space thats ready to grow ...