hero-image-0

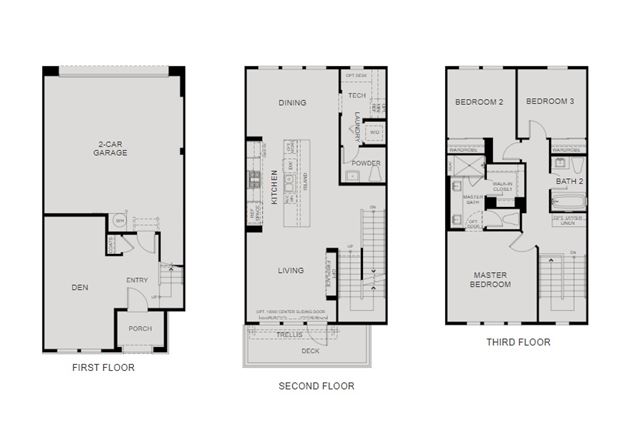
Plan 1

By

City Ventures

   |   

Round Barn

Round Barn
For sale
For sale
From $679,990
3
3 - 4
2 - 3
1 - 2
1
From 1,746
unit-banner-imageunit-banner-imageunit-banner-image
Plan 1 details

Contact sales center

Get additional information including price lists and floor plans.

Interested? Receive updates

Stay informed with Livabl updates on new community details and available inventory.