New Homes for Sale
Articles
Professionals
Log in
Sign up
Photos 2
Videos 0
Map
Interactive floor plan 0
Virtual 0
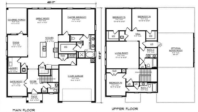
The Harrison Plan
By
D.R. Horton
|
Treasure Trove
Community
Available homes
Get updates
Save
Request info
Request info
Community
Available homes
Request info
Get updates
Save
Request info
Treasure Trove
Get updates
Request info
Sold
Sold
4
3
1
From 3,166
The Harrison Plan details
Address:
Santa Rosa Beach, Florida, FL 32459
Plan type:
Detached Two+ Story
Beds:
4
Full baths:
3
Half baths:
1
SqFt:
From 3,166
Ownership:
Condominium
Interior size:
From 3,166 SqFt
Lot pricing included:
Yes
The Harrison Plan is now sold.
Check out available nearby plans below.
Similar 4 bedroom plans nearby
view all
Antigua
Parkside
From $1,299,900
Santa Rosa Beach
Rhett
Nellie Preserve
From $515,900
Santa Rosa Beach
Alabaster
Nellie Preserve
From $543,900
Santa Rosa Beach
Trenton
Parkside
From $999,900
Santa Rosa Beach
Cayman
Parkside
From $1,369,900
Santa Rosa Beach