hero-image-0
hero-image-1

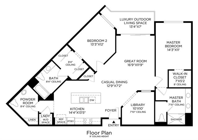
Apex2F1 Plan

Apex at Lawrence Station
Sold
Sold
2
2
1
From 1,434
unit-banner-imageunit-banner-imageunit-banner-image
Apex2F1 Plan details
Apex2F1 Plan is now sold.
Check out available nearby plans below.