










































































Get additional information including price lists and floor plans.
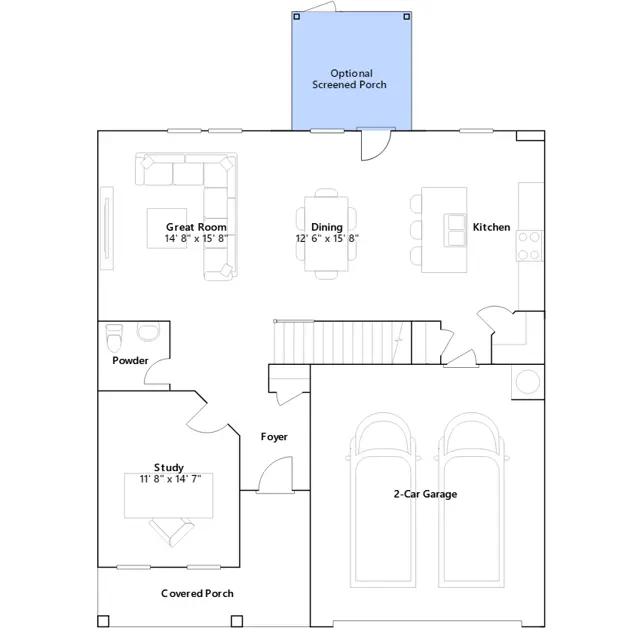
This new two-story home is designed for gracious living. Upon entry is a peaceful study ideal for at-home work, followed by an airy Great Room that connects seamlessly to the kitchen and dining area. Nearby is a rear patio to extend activities outdoors. Residing on the upper level are all four bedrooms and a versatile loft to provide additional shared living space. A two-car garage completes this modern plan.
Stay informed with Livabl updates on new community details and available inventory.