





























































































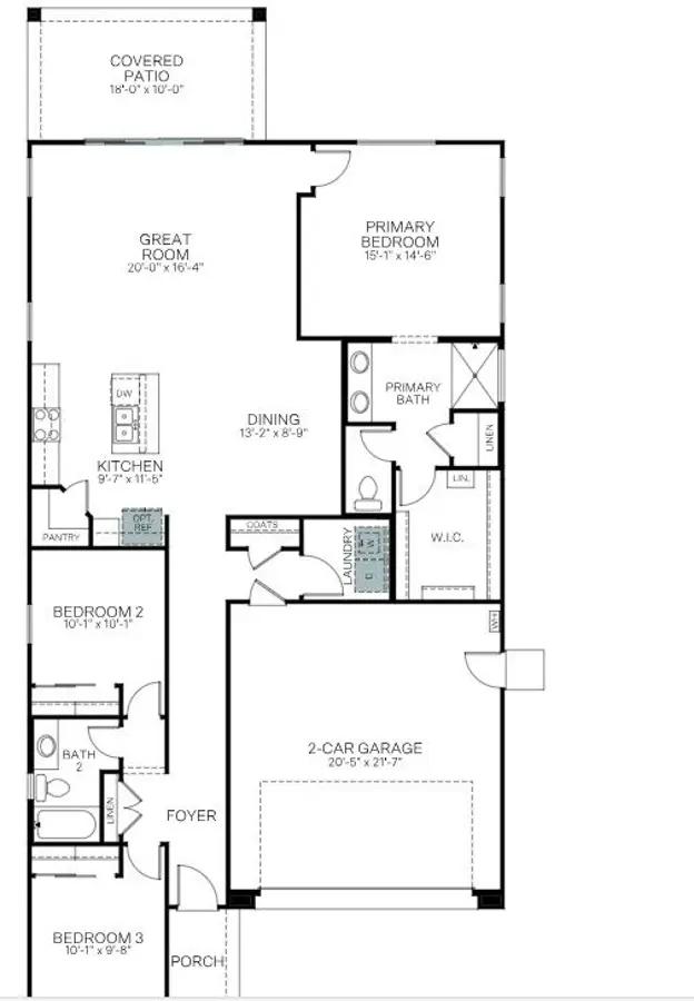
Love to entertain? Cue the trumpets as your guests flow through your impressive foyer and into the heart of the party! Usher them towards the appetizers elegantly laid out on your large kitchen island, watch the game in your spacious great room, or reminisce with old friends beneath your covered patio. Elevate your hosting prowess by opting for the large covered patio extension and 12 foot center sliding glass door to create a seamless flow between indoor and outdoor living!
Stay informed with Livabl updates on new community details and available inventory.