




















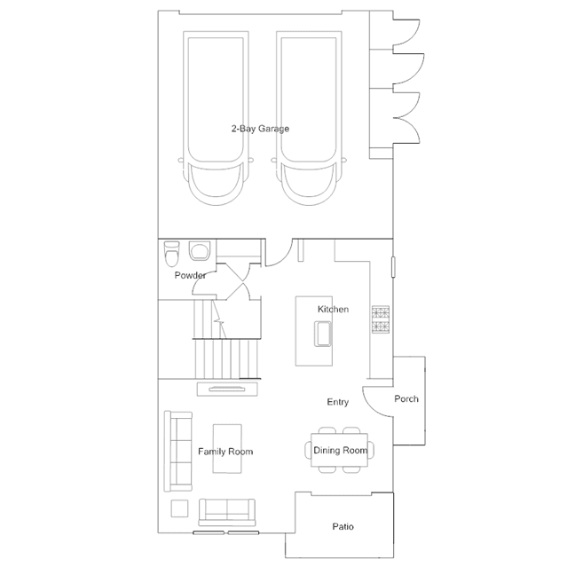
The third largest plan in this collection, this three-story home offers a smart layout with the first floor dedicated as the main shared living area in an open layout. The well-equipped owner's suite and two secondary bedrooms are on the second floor, with a fourth bedroom and loft on the third.