






































Get additional information including price lists and floor plans.
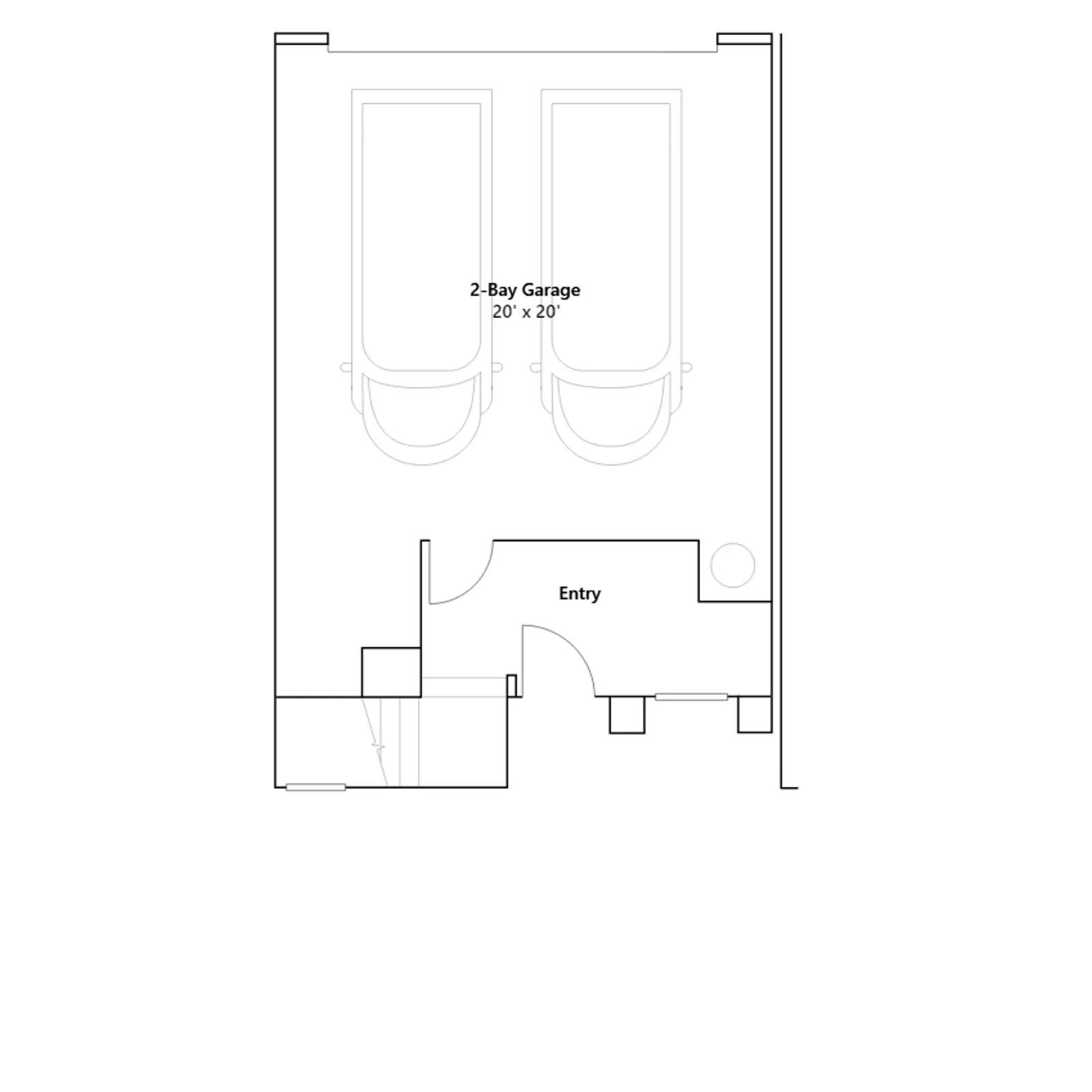
This new three-story home is host to an inviting open floorplan on the second floor that features convenient access to an outdoor deck, perfect for everyday entertaining. Two bedrooms can be found on the third level, including the luxurious owners suite. A two-bay garage completes the home.
Stay informed with Livabl updates on new community details and available inventory.