hero-image-0
hero-image-1

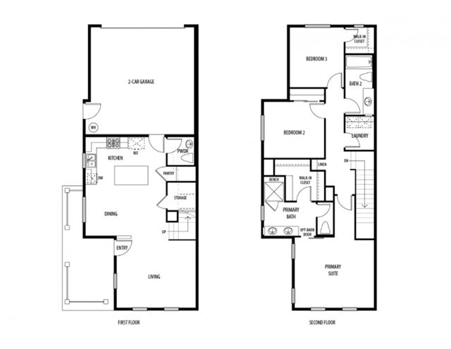
Iron Plan Two Plan

Iron & Oak at Righetti
Sold
Sold
3
2
1
From 1,726
Iron Plan Two Plan details
Iron Plan Two Plan is now sold.
Check out available nearby plans below.