

























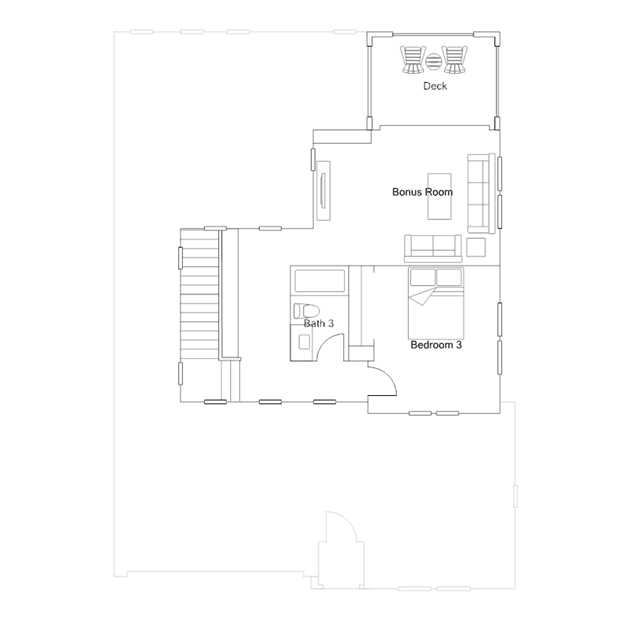
The first level of this two-story home is host to a spacious open floorplan shared between the kitchen, dining room and living room, with sliding glass doors that lead to a patio for effortless indoor-outdoor living and entertaining. The owners suite is situated toward the back of the home, complete with a private bathroom and walk-in closet, while a secondary bedroom can be found off the entry. The second floor is host to a versatile bonus room with a deck and a third bedroom.