Plan 1
Elara at Gavilan Ridge
Echo Ridge Village, Mission Viejo
Plan 1X
Luna at Gavilan Ridge
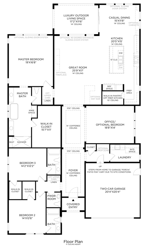
Plan 3
Sapphire at Rienda
Mission Viejo
Plan 2
Plan 2X
Lotus at Rienda