hero-image-0
Yerba Buena Island - The Court...
Not Available
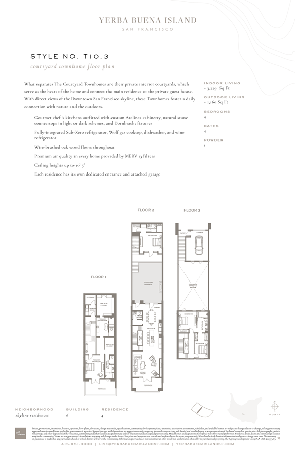
Not available
4
4
1
From 3,293
T 10.3 Plan details

Contact sales center

Get additional information including price lists and floor plans.

Interested? Receive updates

Stay informed with Livabl updates on new community details and available inventory.