





































































Get additional information including price lists and floor plans.
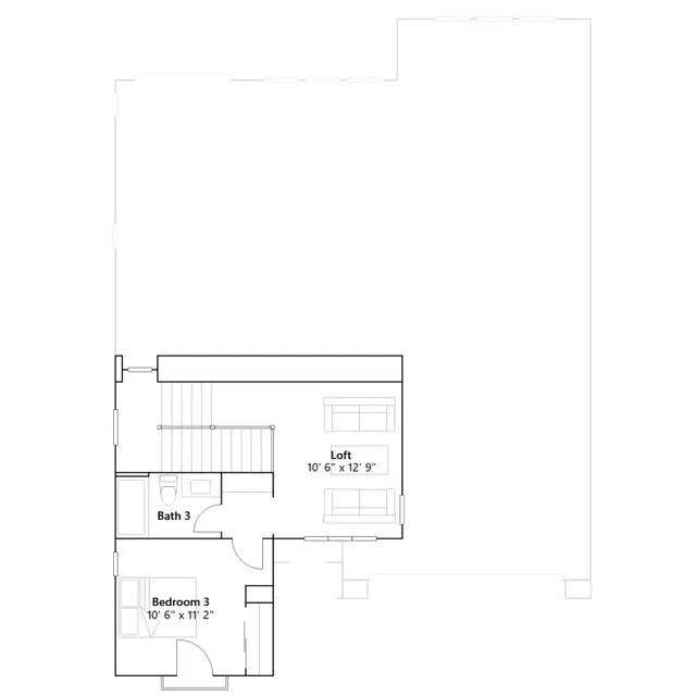
This two-story paired home is designed for residents ages 55 and better and features plenty of shared and private spaces. A private secondary bedroom is located near the entry with an adjacent bathroom available to residents and guests alike. The large open living area showcases the well-appointed kitchen with island and walk-in pantry, dining area and Great Room. The owner's suite is also located on the first level and has its own large bathroom and walk-in closet. Upstairs, a loft is adjacent to an additional secondary bedroom and bathroom.
Stay informed with Livabl updates on new community details and available inventory.