















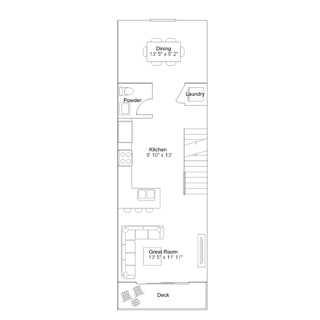
Reed at Epoca offers eight floorplans to choose from, each showcasing two-car garages on the first level. Spacious open-concept designs shared between the Great Room, kitchen and dining room define each residence, while the luxurious owners suite can be found on the top floor.