
































































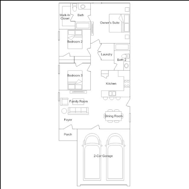
This single-story home has a smart layout that makes good use of the space available. There is a large open family room that features a kitchen and dining area with side yard access. In the back are three bedrooms, including the owners suite with a private bathroom and large walk-in closet.