
















Get additional information including price lists and floor plans.
Images coming soon
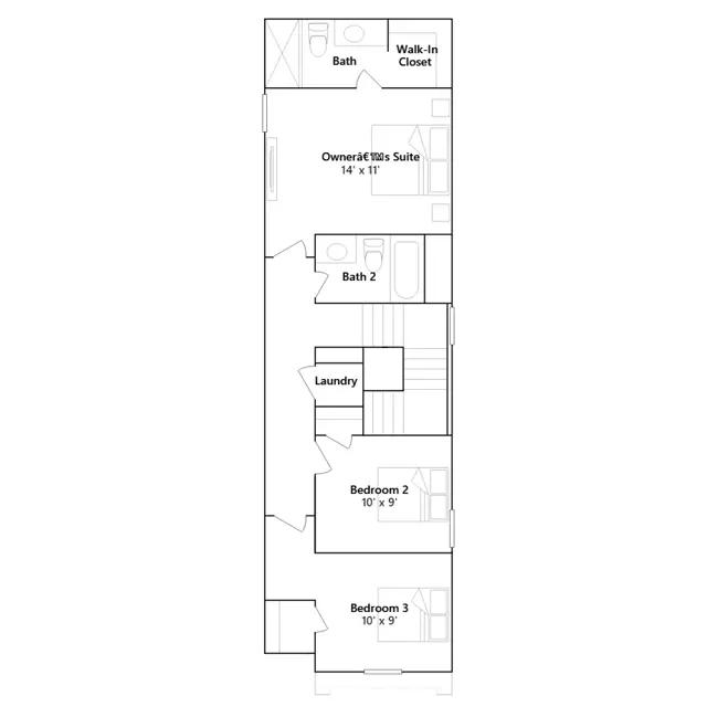
This two-story home features a classic layout ideal for young families and working professionals. The living area is located on the primary floor and consists of a family room and fully-equipped kitchen. There are three bedrooms on the second level, including the spacious owners suite, which is situated at the back of the home for optimal privacy and comfort.
Stay informed with Livabl updates on new community details and available inventory.