

































Get additional information including price lists and floor plans.
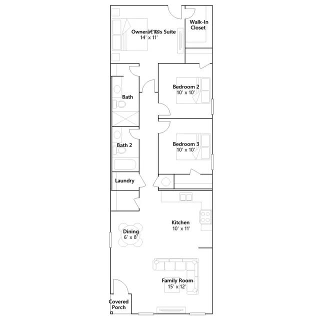
This single-level home showcases a spacious open floorplan shared between the kitchen, dining area and family room for easy entertaining. An owners suite enjoys a private location in the back of the home, complemented by an en-suite bathroom, walk-in closet and direct access to an outdoor space. There are two secondary bedrooms that are both ideal for household members and overnight guests.
Stay informed with Livabl updates on new community details and available inventory.