















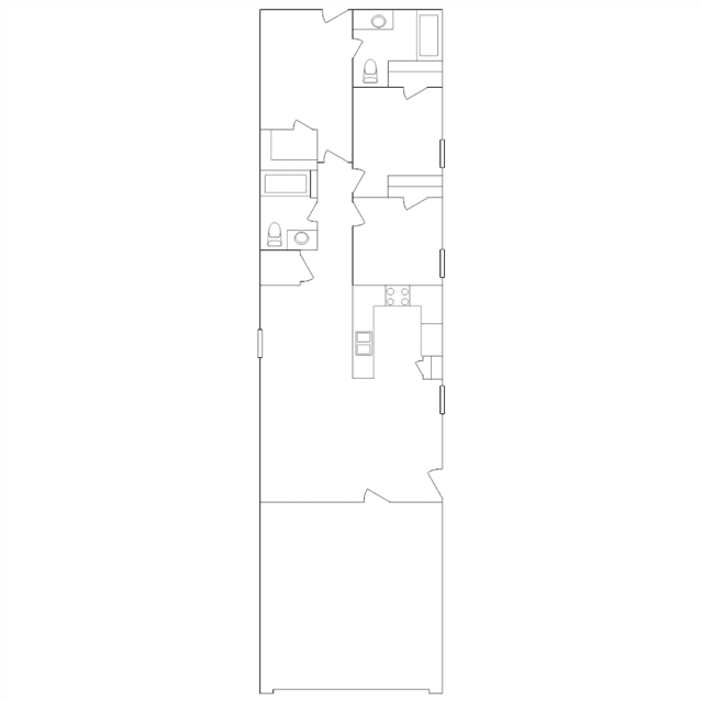
This new single-story home showcases an appealing contemporary design. At its heart stands a family room for relaxing with relatives or celebrating with friends, which connects in an open-plan layout with the dining room and kitchen. The owners suite features a private bathroom and a walk-in closet. Two secondary bedrooms are private havens for younger family members.