














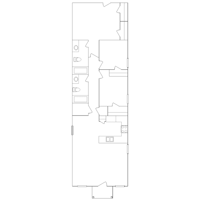
A single-story home perfect for young professionals, couples and empty nesters that features an open living area with a kitchenette and a full bathroom in the back of the home. Beside it is the bedroom with ample space to relax, complete with a full-sized closet.