













Get additional information including price lists and floor plans.
Images coming soon
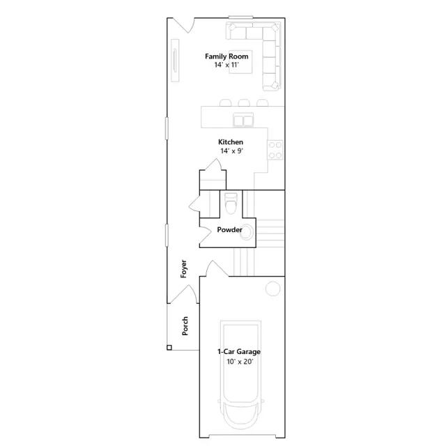
The first floor of this two-story home opens into a shared living space between the kitchen and family room for easy entertaining, along with a convenient powder room. An owners suite sprawls across the rear of the second floor and is comprised of an en-suite bathroom and walk-in closet. A versatile secondary bedroom and full-sized bathroom are also upstairs, ideal for household members or overnight guests.
Stay informed with Livabl updates on new community details and available inventory.