














































Get additional information including price lists and floor plans.
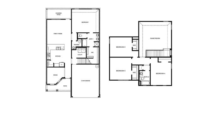
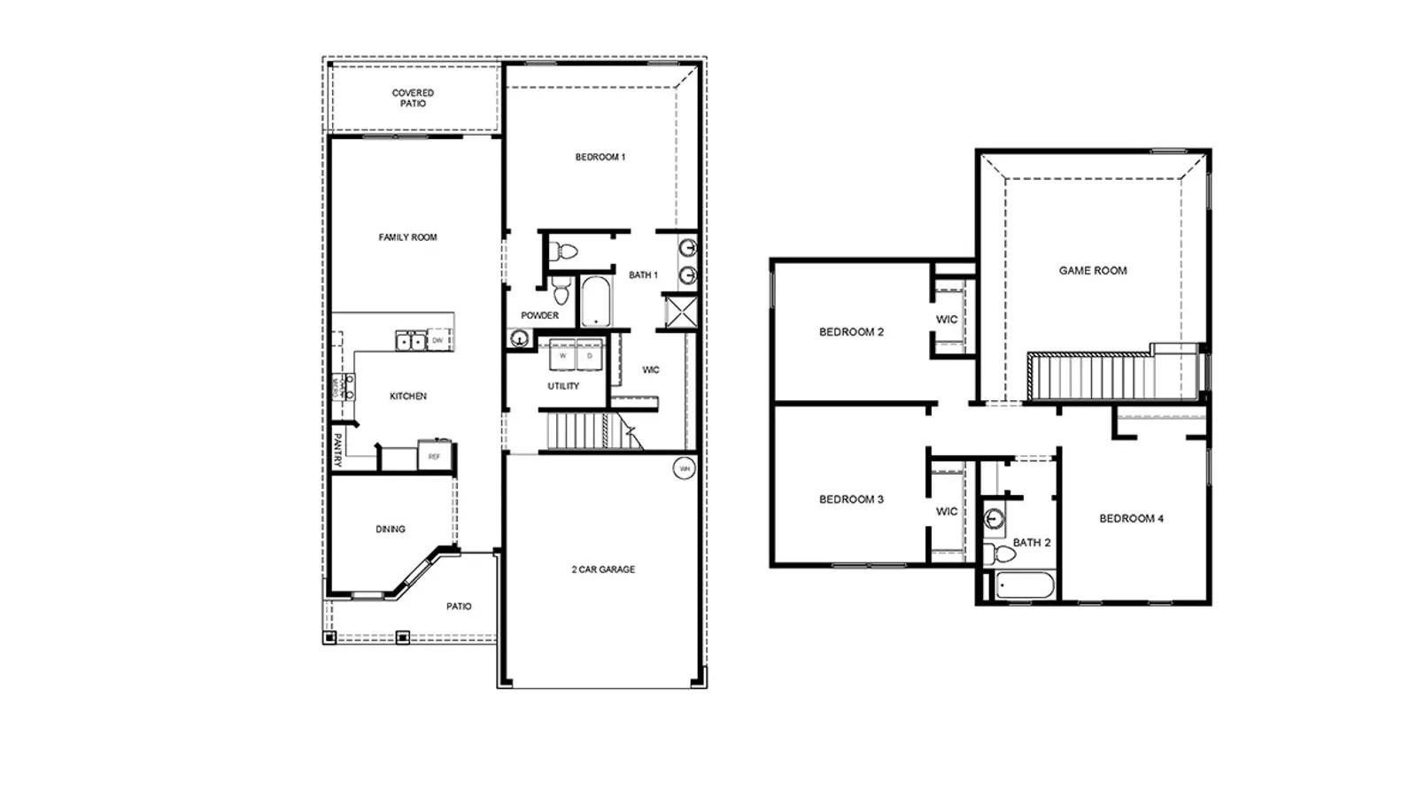
Welcome to The Walsh, a stunning two-story home located at Redbird Ranch in San Antonio, TX. This floor plan offers 4 classic exteriors, a 2-car garage, and a full yard landscaping and irrigation package, ensuring that your home has instant curb appeal. A spacious covered front porch (per plan) welcomes you inside this 4 bedroom, 2.5 bathroom home where you'll find 2323 square feet of living space. Follow the entry hallway past a beautiful formal dining room and into the open kitchen featuring stainless steel appliances, quartz countertops, stylish white subway tile backsplash, spacious corner pantry, tons of cabinet space and a large eat-in breakfast bar. The kitchen opens to a spacious living room, complete with a stunning vaulted ceiling and easy-maintenance hard surface flooring. The living room extends to a lengthy covered back patio (per plan), pe...
Stay informed with Livabl updates on new community details and available inventory.