




























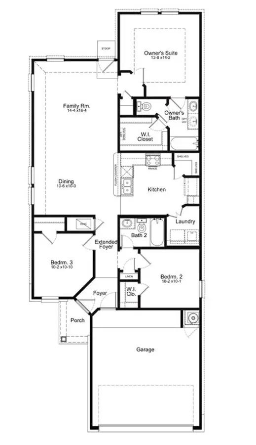
This single-story floor plan features 3 bedrooms and 2 bathrooms. As you enter, you'll find a combined living and dining area that seamlessly connects with the nearby kitchen, providing a convenient and centralized space for all your needs. The owner's suite offers a tranquil ambiance and is enhanced by a spacious walk-in closet, ideal for organizing your belongings. Additionally, there is a range of elevation plans available, allowing you to select the exterior design that suits your preferences.
Stay informed with Livabl updates on new community details and available inventory.