










































































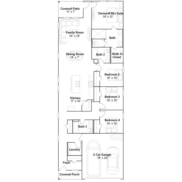
This new single-level home offers a modern and low-maintenance layout. An open-concept floorplan blends the kitchen, living and dining areas to maximize interior space, with access to a covered patio for simple entertaining and multitasking. All four bedrooms are tucked away to the side of the home, including the luxe owners suite with a full bathroom and walk-in closet.
Stay informed with Livabl updates on new community details and available inventory.