















































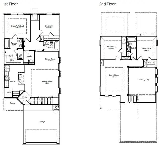
The Matagorda is a four-bedroom, three-bath floorplan that offers 2,084 square feet. The large living area with soaring ceilings offering plenty of room for relaxation and entertaining. The owner's retreat is a private sanctuary, featuring a spacious bathroom and a generous walk-in closet. A second bedroom downstairs offers flexibility as a nursery, study or guest space, while an upstairs gameroom provides an additional space to enjoy. Make the Matagorda floorplan your own with additional options to suit your lifestyle. Choose from features like an extended covered patio where you can enjoy the outdoors, or a luxury owners bath option. With all these options, the Matagorda floorplan allows you to create a space that fits your entire family's needs.
Stay informed with Livabl updates on new community details and available inventory.