
























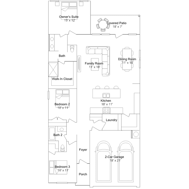
This single-family home has a simple layout that includes everything a growing family needs. Two bedrooms share a hall bathroom at the front of the home and the owners suite is in the back for added privacy. Beside it is the open living area, which features a large back patio.
Stay informed with Livabl updates on new community details and available inventory.