hero-image-0
hero-image-1
hero-image-2
hero-image-3
hero-image-4
hero-image-5

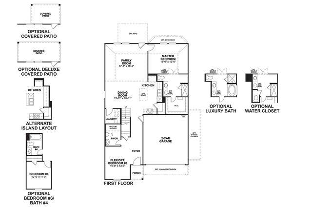
Armstrong Plan

By

M/I Homes

   |   

Agave

Agave
For sale
Virtual Tours
For sale
From $297,490
2
4
2
1
From 2,559
Armstrong Plan details

Contact sales center

Get additional information including price lists and floor plans.

Available homes

Interested? Receive updates

Stay informed with Livabl updates on new community details and available inventory.