























































Images coming soon
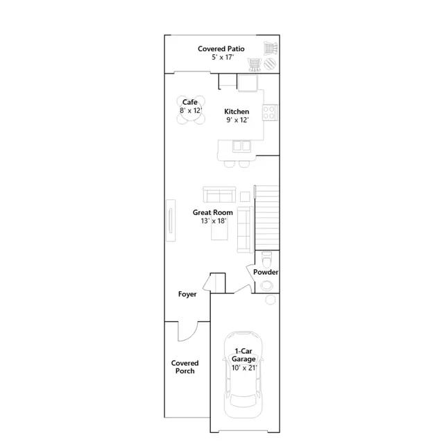
This contemporary two-story townhome features a modern open-concept layout among the Great Room, kitchen and dining space on the first floor. Through sliding glass doors is a covered patio for outdoor moments. Upstairs, a loft joins a bedroom with attached bathroom and the comfortable owners suite with a walk-in closet. Completing the home is a one-car garage.
Stay informed with Livabl updates on new community details and available inventory.